配电盘和配电屏的认识和操作
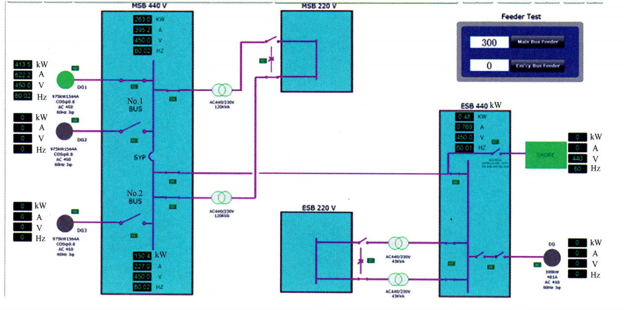
对照电站模拟器软件系统单线图(如图5-1所示),指出主发电机、主开关、汇流排等重要设备,分别找出对应的模拟器硬件。

在电站模拟器软件内,打开主发电机及机旁控制箱界面(如图5-2所示),观察柴油辅机的各系统,通过机旁面板上的仪表了解柴油机的工作状态。对照电站模拟器硬件部分的发电机机旁控制箱(如图5-3所示),加深理解。


在电站模拟器硬件部分的主配电板(如图5-4所示)前,观察主配电板的各个组成部分:发电机控制屏、并车屏、负载屏。

对于电站模拟器硬件部分的发电机控制屏(如图5-5所示),重点是认识“GEN. RUNNING” 指示灯、“READY FOR START”指示灯、启动按钮、停止按钮、合闸带灯按钮、分闸带灯按钮、电压表、电流表、频率表。

对于电站模拟器硬件部分的并车屏(如图5-6所示),重点是认识同步表及切换开关、模式控制开关、合闸按钮、分闸按钮、调速开关。

对于电站模拟器硬件部分的负载屏,重点是了解各类负载配电开关的位置。
二、配电盘和配电屏的操作
(一)启动与供电操作
1. 合闸前检查
确认发电机已稳定运行,电压、频率正常。检查配电屏断路器状态(分闸/合闸)及指示灯是否正常。
2. 合闸操作
手动或遥控控制闭合主断路器,观察电压表、电流表数值是否在额定范围内。
关键动作:合闸后立即观察电网绝缘状态,确保无瞬时漏电。
(二)负载分配与切换后查看电网绝缘状态
1. 负载转移
通过负载分配器调整各发电机的输出功率,确保均衡分配(偏差不大于10%)。切换重要负载时,采用“先断后通”原则,避免并联短路。
2. 切换负载后绝缘状态监测
负载切换完成后的5min内,关注电网绝缘表,绝缘电阻不能低于1 MΩ。
三、知识延伸
在电站模拟器软件内,打开应急发电机界面及控制箱(如图5-7所示),观察应急发电机的各系统,重点是启动子系统。对照硬件和软件,熟悉应急发电机机旁控制面板、应急发电机控制屏(如图5-8所示)和配电屏。


对照硬件和软件,熟悉蓄电池和充放电板,如图5-9所示。

对照硬件和软件,熟悉岸电箱和岸电主开关,如图5-10所示。

在自动化模拟机舱内,对以上部分的实物进行观察和熟悉。
四、相关知识
1. 船舶电力系统的组成
船舶电力系统由电源、配电装置、电力网和负载四个部分组成。
2. 船舶电源的种类
船舶电源包括主发电机组、应急发电机和蓄电池,在港口还可通过岸电箱接入岸电。
3. 船舶配电装置的种类
船舶配电装置包括主配电板、应急配电板、充放电板和岸电箱,与船舶电源对应。主配电板下面还有动力配电箱和照明配电箱,用于给动力负载和照明负载配电。
4. 主配电板的组成和功能
主配电板由发电机控制屏、并车屏、负载屏和汇流排组成。主配电板是船舶电力系统的操作中心。它的主要功能是:
- (1) 正常运行时,手动或自动接通或切断电源至用电设备间的供电网络,对电网供电或停止供电。
- (2) 测量和监视电力系统的各种电气参数(电压、频率、电流、功率、功率因数、绝缘电阻等)。
- (3) 调整电力系统的各电气参数值(如电压、频率)。
- (4) 当电力系统发生故障或不能正常运行时,保护电路将自动切断故障电路或发出报警信号。
- (5) 对电路状态、开关状态以及偏离正常的工作状态进行信号显示。
- (6)对于故障待修或正在检修的电气设备,在主配电板上断开电源时,必须在其相应的开 关上悬挂告示牌,以免造成触电事故或设备损坏。
- (7)配电盘上同步表、兆欧表均按短期工作设计,并车或测量完毕后,应将转换开关扳回 零位。
- (8)观察配电盘上兆欧表或地气灯所显示的船舶电网绝缘情况。如绝缘性能不良,应及 时进行检查、排除。













